VIKAWORK
- VIKAWORK
- коворкинг
- Москва
- 363 м2
- 2020
Яркий интерьер
коворкинга в Москве
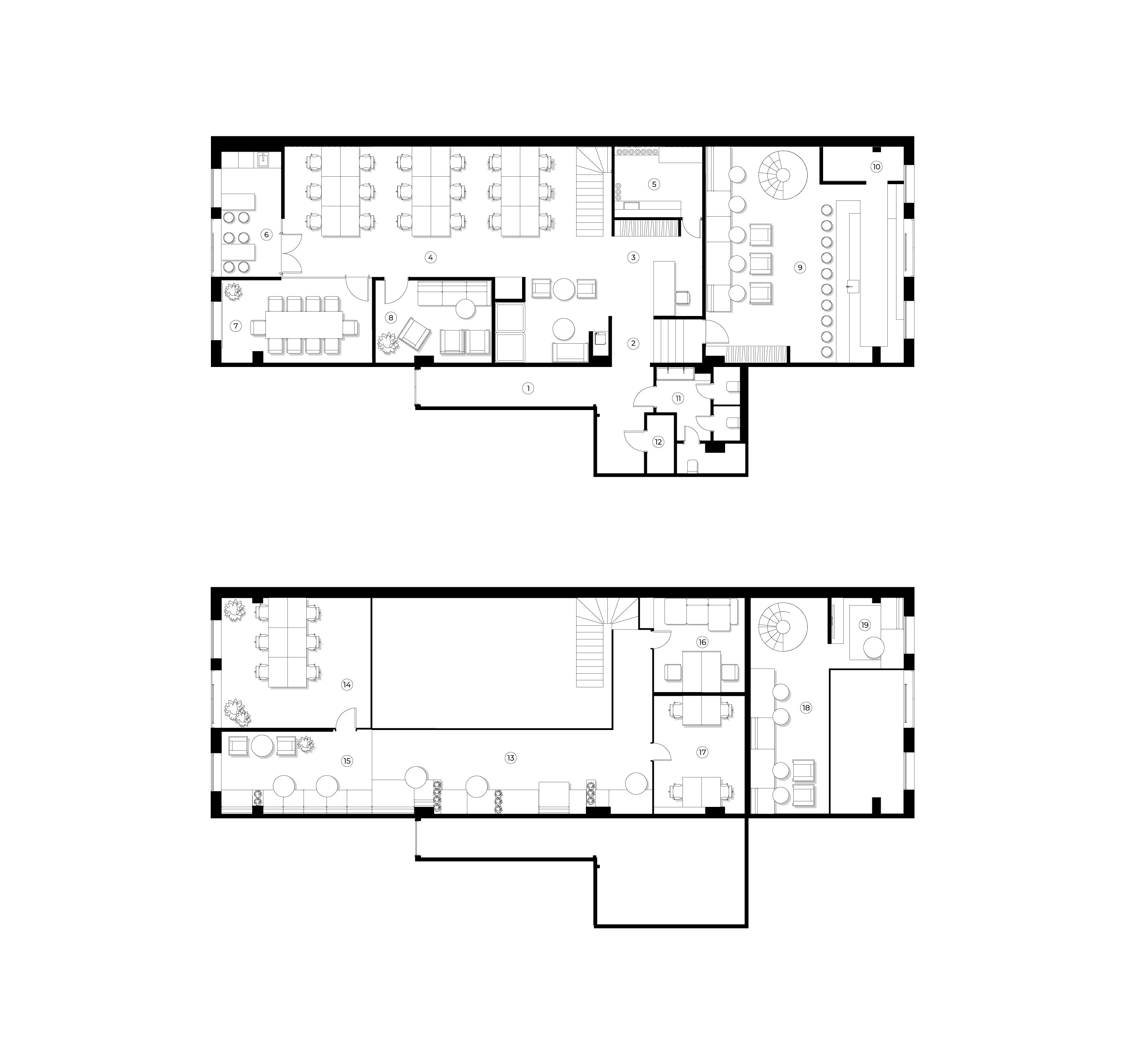
Проект московского коворкинга. Перед нами стояла задача разработать коворкинг для айтишников и специалистов креативной индустрии. В пространстве разместили бизнес лаундж, open space на 30 рабочих мест, несколько переговорных комнат и кальянный продакшн. В качестве основного акцента мы использовали фирменные цвета коворкинга.
- 1Холл
- 2Тамбур
- 3Рецепция и лобби
- 4Open space
- 5Кальянный продакшн
- 6Кухня
- 7Переговорная
- 8Бизнес лаундж
- 9Бизнес лаундж
- 10Подсобка
- 11Санузел
- 12Подсобка
- 13Open space
- 14Кабинет
- 15Мини лаундж
- 16Кабинет
- 17Кабинет
- 18Бар
- 19Лаундж
Руководитель проекта:
- Анастасия Стручкова
Дизайн:
- Дарья Савина
- Денис Красиков
Хотите обсудить Ваш проект и рассчитать его стоимость?